Căn hộ 3 phòng ngủ Sentosa Sky Park là dòng sản phẩm có diện tích lớn nhất tại dự án (trừ các căn Penthouse & Duplex) với không gian lớn, đầy đủ tiện nghi dành cho các gia đình đông thành viên.
Giới thiệu dự án Sentosa Sky Park
- Chủ đầu tư: Tập đoàn Agape Holding Singapore.
- Vị trí: Giao lộ Bùi Viện – Võ Nguyên Giáp, Vĩnh Niệm, Lê Chân, TP. Hải Phòng.
- Nhà thầu thi công: Delta (Top 5 Nhà thầu uy tín nhất Việt Nam).
- Đơn vị vận hành: Takara Leben (Đơn vị quản lý vận hành 5 sao của Nhật với 40 năm kinh nghiệm quản lý căn hộ chung cư, hiện đang quản lý vận hành toà nhà Nikko Hotel 5 sao).
- Quy mô: 28 tầng + 1 tầng hầm, gồm 604 căn hộ cao cấp chuẩn Singapore.
- Thiết kế: Studio (31,8 – 36,4 m2); 1 PN (46,5 – 52,3 m2); 2 PN (68,2 – 73,5 m2); 3 PN (102,9 – 128,8 m2); Dual Key (66m2); Penthouse (113,6 – 234,3 m2); Duplex (duy nhất 1 căn 181,6 m2).
- Hình thức sở hữu: Sổ đỏ vĩnh viễn.
Sentosa Sky Park là dự án căn hộ nằm tại trái tim vùng trung tâm mới – khu thượng lưu mới của Hải Phòng, nơi hội tụ những tiện nghi đẳng cấp bậc nhất thành phố từ y tế, giáo dục, thương mại và giải trí. Với lợi thế nằm ngay ngã tư đắt giá Bùi Viện – Võ Nguyên Giáp và sở hữu quy hoạch đồng bộ, hiện đại bên dòng sông Lạch Tray hiền hòa, Sentosa Sky Park với dấu ấn khách biệt, mang chất sống chuẩn Singapore về đất cảng.
Căn hộ 3 phòng ngủ Sentosa Sky Park
Mẫu thiết kế Căn hộ 3 phòng ngủ tại Chung cư Sentosa Sky Park
Các căn 3 ngủ Sentosa Sky Park có diện tích 116m-140m2 chia làm 2 loại 3 ngủ nhỏ và 3 ngủ lớn, đặc biệt chú trọng tới sự thoải mái với không gian lô-gia lớn, hệ thống cửa triple low-e cao cấp khai thác tối đa ánh sáng và gió tự nhiên cho căn hộ.
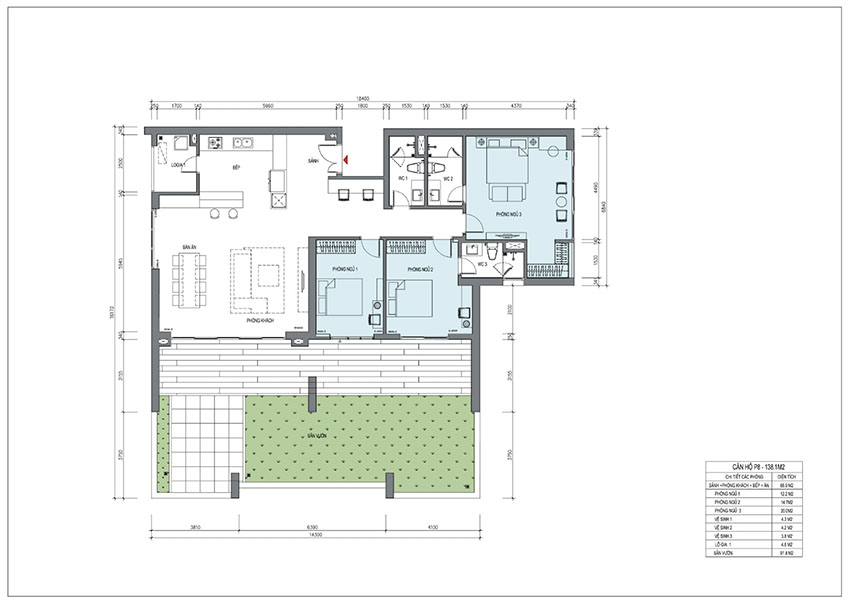
Mặt bằng thiết kế căn 3 phòng ngủ Sentosa Sky Park
Trừ các căn hộ 3 phòng ngủ nhỏ thì các căn 3 ngủ tại Sentosa Sky Park đều nằm tại các vị trí góc của các toà căn hộ thuộc cả khu chung cư Sentosa Hải Phòng:
- Diện tích thông thủy: 116m2 – 140m2
Mẫu Thiết kế phòng ngủ dự án Sentosa Sky Park được bố trí nội thất khoa học
Tiềm năng sinh lời từ các căn 3 ngủ Sentosa Sky Park
Một trong những yếu tố giúp các căn hộ 3 phòng ngủ được khách hàng quan tâm đó chính là tiềm năng tăng giá, khai thác sinh lời hiệu quả:
- Số lượng căn hộ 3 ngủ tại Sentosa Sky Park rất thấp, dẫn đến tính khan hiếm của dòng sản phẩm này tạo nên giá trị cho thuê cao, tính thanh khoản tốt.
- Nguồn khách hàng của khu vực trung tâm thành phố Hải Phòng luôn ở mức cao, với diện tích lớn cùng hệ thống dịch vụ tiện ích cao cấp sẽ là yếu tố thu hút nhiều gia đình đông thành viên trong nước và quốc tế muốn sinh sống tại Sentosa Sky Park
- Bền vững với thời gian: Các sản phẩm của Agape Việt Nam đều hướng tới sự trường tồn với thời gian từ các tiêu chí thiết kế, đơn vị phát triển toàn cầu, chủ đầu tư tầm vóc quốc tế,…sẽ tạo nên Sentosa Sky Park trường tồn với thời gian, góp phần sinh lời an toàn, hiệu quả cho các nhà đầu tư.
Mọi thông tin về dự án Sentosa Sky Park vui lòng liên hệ với Duyên Hải Land theo số hotline 0907 65 8686 để được tư vấn chi tiết !
